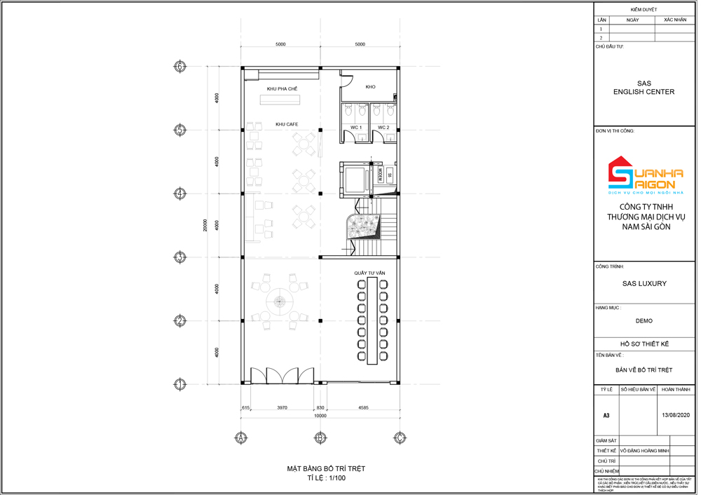
Dự án 3 SAS English Luxury